Leave a Message

Thank you for your message. We will be in touch with you shortly.

Explore Our Properties
402 Sterling Place
402 Sterling Place
402 Sterling Place
402 Sterling Place
See all photos
402 Sterling Place
402 Sterling Place
SEE ALL PHOTOS
402 Sterling Place
402 Sterling Place
Sold

402 Sterling Place

402 Sterling Place, Brooklyn, NY 11238

$4,725,000
$4,725,000

402 Sterling Place

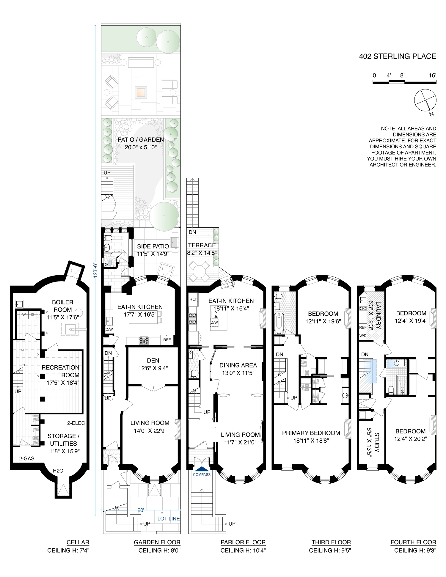
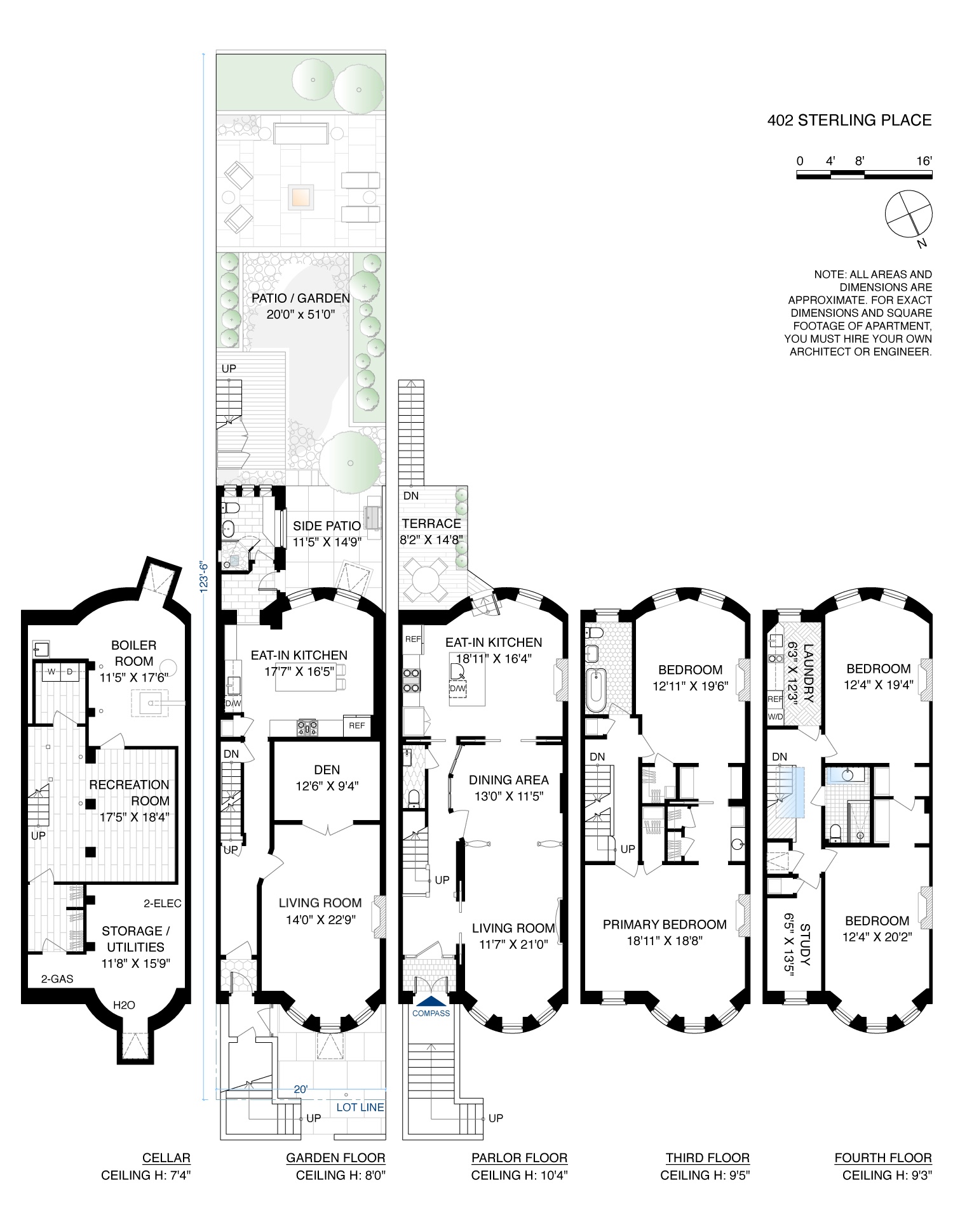
6 Beds 4 Baths 4,053 Sq.Ft.

Description

Perfectly situated on an iconic, tree-lined block in Prospect Heights, this distinguished two-family home is a rare gem, meticulously maintained and brimming with historic details and tasteful modern upgrades. Configured as an elegant upper triplex over a lovely garden-level duplex rental, it can easily be converted into a magnificent single-family residence.

This landmarked beauty is a testament to timeless craftsmanship, measuring 20 feet wide by 50 feet deep on an extra-deep 123-foot lot. The stunning limestone facade is adorned with carved moldings, frieze panels, and decorative medallions. The timeless interiors feature original oak parquet floors with mahogany inlay, soaring ceilings, immaculate woodwork, and functioning original pocket doors.

The gracious entryway sets the tone with wooden arches topped with carved filigree. The spacious living room, infused with light through three tall bay windows, boasts an impressive cherrywood pier mirror and intricate wooden fretwork. The dining room's unique wall of stained-glass paneling brings light into the heart of the house. Through pocket doors, a stunning modern chef's kitchen awaits, offering ample cabinetry, a Wolf range, a vented hood, a decorative mantle, and a breakfast nook overlooking the leafy backyard. A door leads to a deck with space for a small table and stairs down to the garden. A powder room completes the parlor floor.

The second floor hosts a grand primary suite with four large windows, a magnificent mantle, and a turn-of-the-century pass-through dressing area with immaculate bird's-eye maple and a private marble sink. A full bath and a second spacious bedroom with a beautiful mantle, oak closets, and another marble sink complete the floor. The top floor offers two large bedrooms with lovely mantles, a small bedroom, a full bath, and a kitchenette with a full-sized washer and dryer. Solar panels on the roof help keep electricity costs low.

The beautiful garden-level one-bedroom, one-bath duplex rental has its own private entrance under the stoop. The large living room showcases historic details, including a stately mantle, while the generously sized, newly renovated eat-in kitchen boasts abundant storage, counter space, a dishwasher, and access to the garden. The lower level features a washer/dryer, a recreation room, and storage.

The extra-deep backyard is a serene, urban oasis, with a bluestone seating area and vibrant, abundant plantings. The garden has been lovingly planned to provide multi-season interest, with viburnums, owl juniper, Japanese anemones, and more. Two river birch trees and a Japanese maple provide shade. The irrigation system makes upkeep a breeze.

Steps from some of the most celebrated food and drink in the city, including Radio Bakery, Gold Star, and Olmstead, and minutes from the 2/3/4/B/Q/S trains, Grand Army Plaza, Prospect Park, the Brooklyn Museum, and all the shops on Vanderbilt and Underhill Avenues.

Share Property

Location

402 Sterling Place, Brooklyn, NY 11238

Status

Sold
$4,725,000

402 Sterling Place

6 Beds 4 Baths 4,053 Sq.Ft.

Description

Perfectly situated on an iconic, tree-lined block in Prospect Heights, this distinguished two-family home is a rare gem, meticulously maintained and brimming with historic details and tasteful modern upgrades. Configured as an elegant upper triplex over a lovely garden-level duplex rental, it can easily be converted into a magnificent single-family residence.

This landmarked beauty is a testament to timeless craftsmanship, measuring 20 feet wide by 50 feet deep on an extra-deep 123-foot lot. The stunning limestone facade is adorned with carved moldings, frieze panels, and decorative medallions. The timeless interiors feature original oak parquet floors with mahogany inlay, soaring ceilings, immaculate woodwork, and functioning original pocket doors.

The gracious entryway sets the tone with wooden arches topped with carved filigree. The spacious living room, infused with light through three tall bay windows, boasts an impressive cherrywood pier mirror and intricate wooden fretwork. The dining room's unique wall of stained-glass paneling brings light into the heart of the house. Through pocket doors, a stunning modern chef's kitchen awaits, offering ample cabinetry, a Wolf range, a vented hood, a decorative mantle, and a breakfast nook overlooking the leafy backyard. A door leads to a deck with space for a small table and stairs down to the garden. A powder room completes the parlor floor.

The second floor hosts a grand primary suite with four large windows, a magnificent mantle, and a turn-of-the-century pass-through dressing area with immaculate bird's-eye maple and a private marble sink. A full bath and a second spacious bedroom with a beautiful mantle, oak closets, and another marble sink complete the floor. The top floor offers two large bedrooms with lovely mantles, a small bedroom, a full bath, and a kitchenette with a full-sized washer and dryer. Solar panels on the roof help keep electricity costs low.

The beautiful garden-level one-bedroom, one-bath duplex rental has its own private entrance under the stoop. The large living room showcases historic details, including a stately mantle, while the generously sized, newly renovated eat-in kitchen boasts abundant storage, counter space, a dishwasher, and access to the garden. The lower level features a washer/dryer, a recreation room, and storage.

The extra-deep backyard is a serene, urban oasis, with a bluestone seating area and vibrant, abundant plantings. The garden has been lovingly planned to provide multi-season interest, with viburnums, owl juniper, Japanese anemones, and more. Two river birch trees and a Japanese maple provide shade. The irrigation system makes upkeep a breeze.

Steps from some of the most celebrated food and drink in the city, including Radio Bakery, Gold Star, and Olmstead, and minutes from the 2/3/4/B/Q/S trains, Grand Army Plaza, Prospect Park, the Brooklyn Museum, and all the shops on Vanderbilt and Underhill Avenues.

Share Property

Location

402 Sterling Place, Brooklyn, NY 11238

Status

Sold

Features & Amenities

Interior

  • total bedrooms6
  • Total bathrooms4
  • full bathrooms3
  • half bathroom1
  • Laundry room See Remarks
  • Flooring Parquet
  • Fireplace Decorative
  • APPLIANCES Dryer, Washer
  • other interior Features Crown Molding, Eat-in Kitchen, High Ceilings

Area & Lot

  • Status Sold
  • Living Area4,053 Sq.Ft.
  • Total Area4,053 Sq.Ft.
  • MLS® IDRLS20009996
  • TypeMulti-Family
  • YEAR BUILT1910
  • NeighborhoodProspect Heights

Exterior

  • STORIES4
  • other exterior FeaturesPrivate Outdoor Space Over 60 Sqft, Private Yard

Financial

  • Sales Price$4,725,000
  • Real Estate Tax $11,496/yr

Contact Us

Fill out your information below for more info.

Follow Me on Instagram